2005 GUGGENHEIM GUADALAJARA

En la propuesta para un nuevo Museo Guggenheim con sede en Guadalajara, la alteración de la horizontalidad típica de los edificios museísticos aparece como un homenaje al paisaje que lo rodea y, al mismo tiempo, como una metáfora de la urgente necesidad de reducir nuestra huella de carbono en la superficie del planeta.

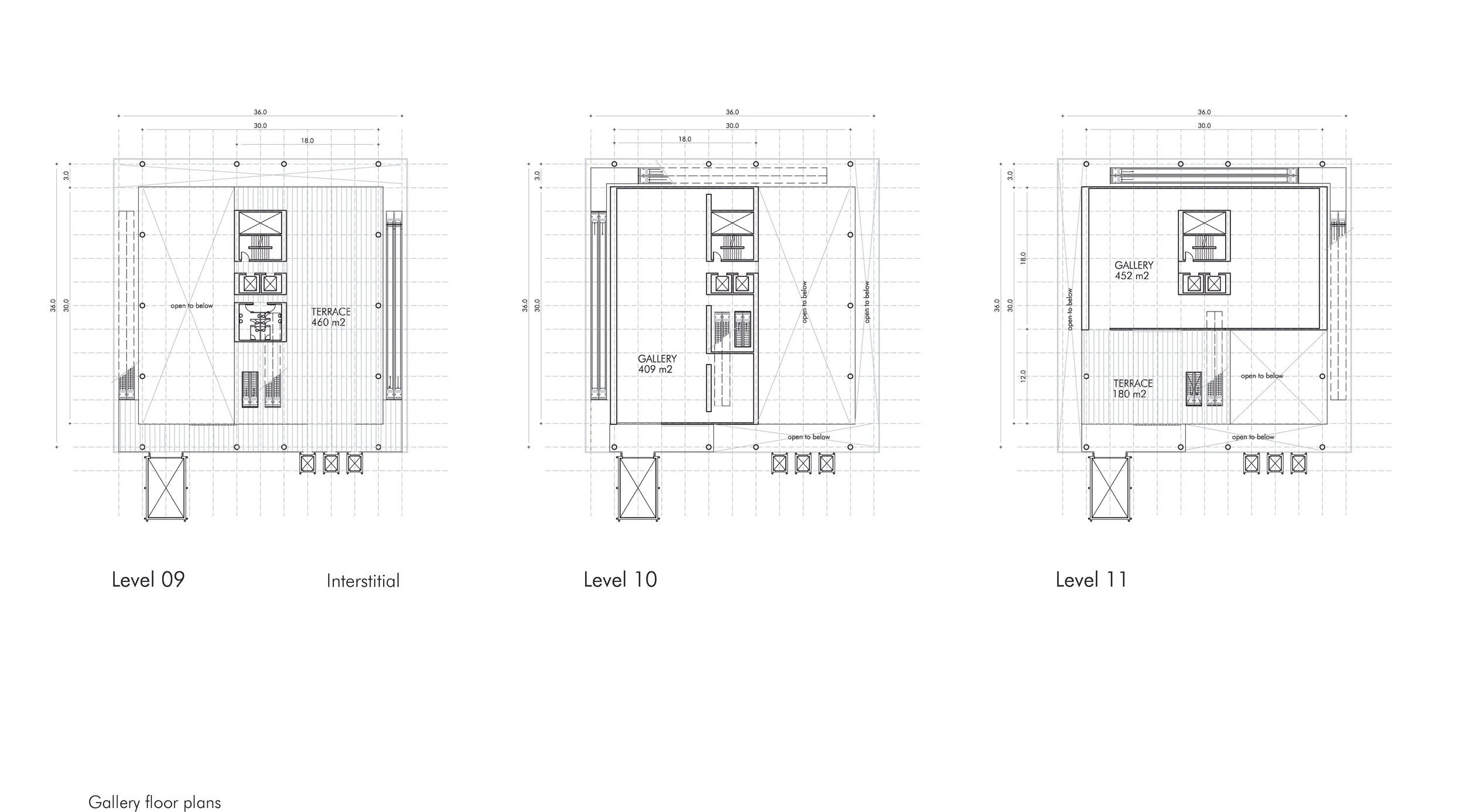
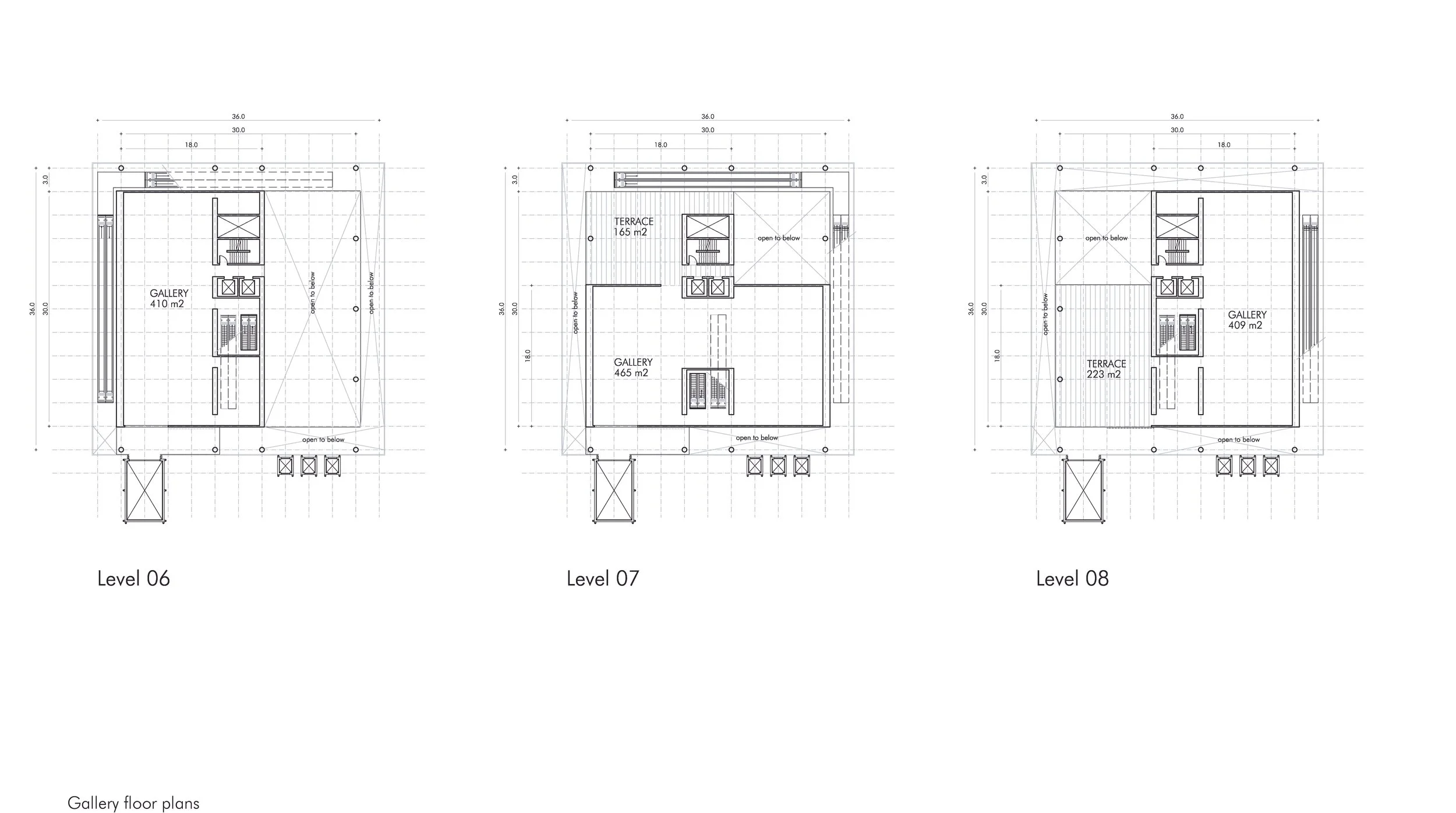
Al explorar las necesidades funcionales y espaciales de un museo adaptado a un espacio vertical, el edificio se convertiría en un elegante referente translúcido con dos objetivos principales: delimitar el borde de la expansión urbana y destacar o inspirar la contemplación de los paisajes prístinos que lo rodean.

El proyecto es una celebración del encuentro entre las condiciones urbanas y naturales, con un énfasis en preservar la mayor superficie posible del parque natural. De este modo, la arquitectura se presenta no sólo como una suma de artefactos construidos, sino también como una integración del carácter natural de su entorno.

Nombre del proyecto: Museo Guggenheim Guadalajara

Ubicación: Barranca de Oblatos, Guadalajara, Jalisco

Año de diseño: 2004

Consultor en Museografía: Julian Zugazagoitia

Área aproximada: 25,600 m2

Equipo de proyecto: Enrique Norten, Tim Dumbleton, Dieter Schoellnberger, Johan van Lierop, Alex Miller, David Campos, Zoë Small, Sonia Gómez, Miguel Ríos, Mariana Narváez, Jorge López de Obeso, Fausto Alvarado, Daniel Ríos